Dodano do koszyka!
Podnośnik 2-kolumnowy Typ: PD-2A
Warunki instalacji podnośników
Podnośnik można instalować w każdym dowolnym miejscu niezagrożonym eksplozją i bezpośrednim działaniem wody, na posadzce o dostatecznej wytrzymałości.
Powierzchnia płaska – dopuszczalna różnica do 0,5 cm na 3 m długości.
Podłoże, na którym będzie zainstalowany podnośnik powinno być prefabrykowane, wykonane z betonu klasy B25/C25 i suche przez co najmniej 28 dni, co gwarantuje uzyskanie odpowiedniej odporności.

Wymiary podłoża: długość – 4000mm, szerokość – 1000mm, głębokość – 300mm
UWAGA: Głębokość podstawy betonowej nie może być mniejsza niż 250mm.
|
Wymiary pomieszczenia, w którym będzie instalowany podnośnik: |
![]() |
|
|
![]() |
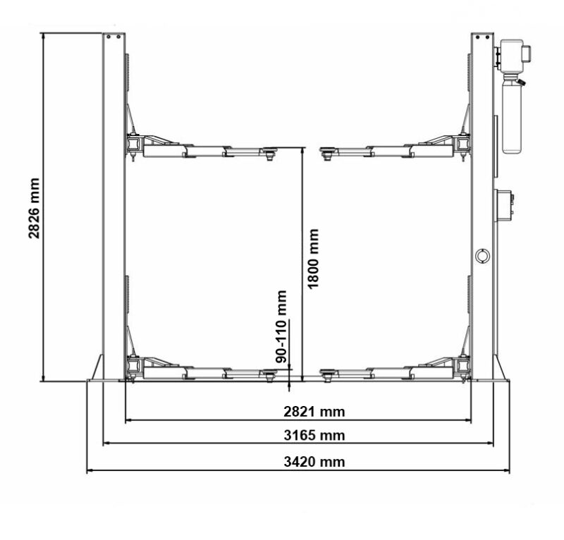
Udźwig:
4000 kg
Maks. wysokość podnoszenia:
1800 mm
Minimalna wysokość ramion:
90 - 110 mm
Wysokość całkowita:
2826 mm
Szerokość całkowita:
3420 mm
Szerokość najazdu:
2821 mm
Czas podnoszenia:
~50s
Czas opuszczania:
22 s
Moc silnika:
2,2 kW
Zasilanie:
400V
Waga urządzenia:
680 kg
Montaż podnośnika jest dodatkowo płatny. Koszt montażu u klienta 1400zł netto.
Podnośnik wymaga odpowiedniego podłoża:
W celu zamówienia montażu zgłoś produkt
zapytanie ofertowe
Wyślij zapytanie